
Här planerar vi för Karlskronas nya landmärke. Bostadskvarteret tar med sig arkitektonisk historia in i det hållbara moderna boendet. Pottholmens nya bostadskvarter blir en mötespunkt för stadsliv och urban grönska. Anmäl ditt intresse så får du nyhetsbrev med löpande information om vad som händer. Planlösningar och priser presenteras vid säljstarten som är planerad till våren 2026.
Vår 2026
Här bor du mitt på Pottholmen, samtidigt som det är stadsmiljö är det lugna bostadskvarter, bara ett stenkast från havet.
Välkommen på första visning av ditt nya hem på Pottholmen hos Svensk Fastighetsförmedling.
Järnvägstorget 8A







































Här kommer vi att skapa nya hem mellan urban grönska och en levande stadskärna. I Brf Brandtornet bor du mitt på Pottholmen, i en mix av urban citymiljö och lugna bostadskvarter, bara ett stenkast från vågorna i Borgmästarefjärden. Brf Brandtornet kommer att bestå av cirka 68 bostadsrätter i form av två tornhus. Det ena med sina ståtliga 14 våningar, som inte går någon obemärkt förbi, och det andra med sju våningar som smälter naturligt in i den redan vackra bebyggelsen. Det tredje huset inrymmer en lokal för framtida verksamhet, men även lägenheter på toppen.
Med tornens olika höjder bidrar kvarteret till ett varierande uttryck och tillsammans skapar de en sammanhållen oas. Kvarteret omringas av en historisk arkad och mellan tornen skapas ett grönt rum som leder från Blekingegatan ut mot Borgmästarefjärden och blickar ut mot kruthuset på Ljungskär. De tunga valven som omsluter kvarteret ger en känsla av oas innan man går vidare ut mot parksidan och blickarna automatiskt dras mot Borgmästarefjärden och den vackra strandpromenaden som binder samman Långö, Pantarholmen med Pottholmen och Trossö. Inte bara vacker arkitektur i en gemensam oas utan även gröna tak. Det höga huset kommer att ha solpaneler på toppen.
Längst ner i husen kommer tre studioettor samsas med flera lokaler i varierande läge och storlek där olika verksamheter kommer bidra till en levande plats. Här har vi även gjort plats för både gemensamhetslokal och övernattningslägenhet som du som boende kan hyra när du får långväga gäster eller vill bjuda in till en större fest. Alla lägenheter kommer ha separata förråd i varje hus.
Högst upp i huset med 14 våningar tronar två etagelägenheter med generösa balkonger och milsvid utsikt. Här kommer det kännas som om du bor bland molnen med en oslagbar magnifik utsikt över Karlskrona. Många av lägenheterna på de andra våningsplanen kommer att ha fri utsikt mot olika väderstreck och de flesta lägenheterna kommer ha balkong. Vissa lägenheter har till och med flera balkonger och alltid minst en inglasad och en del bjuder även på utsikt mot flera väderstreck.
Lägenheterna bjuder på öppna planlösningar med fokus på den sociala samvaron och smart förvaring. Vi vill att det ska vara enkelt att leva bra. Det kommer att vara olika inredning i lägenheterna beroende på vilket våningsplan du bor på. Det finns något för alla smaker. Inredningarna har tagits fram av inredningsexperter och håller såväl klass och funktion över tid.
Köken kommer att var från Vedum och inredningen i badrummen kommer vara från Svedbergs. Självklart är det helkaklade badrum, skön ekparkett, bra förvaring och fräscha nymålade väggar. Med tvätt-och torkutrustning i din egen lägenhet får till och med klädvården ett stänk av glamour. Mer information om inredningen kommer presenteras i samband med säljstart.
Vi tänker mycket på miljön när vi bygger nya bostäder och byggnaderna kommer att certifieras med Miljöbyggnad Silver. Miljöbyggnad Silver är ett svenskt system för certifiering av byggnader som premierar låg energianvändning, goda innemiljöer och granskade materialval. Utöver detta ställer nivån höga krav på dagsljusfaktorer i bostaden, ljudmiljö, behovsstyrda ventilationssystem och fuktsäkerhet. Det garanterar bra, ljusa och energieffektiva bostäder – och ett långsiktigt hållbart bostadsområde.
Bostäderna på har också till uppgift att underlätta en mer hållbar livsstil, för dig som boende, bland annat genom bilpool och föreningscykel. Det kommer finnas cirka 46 parkeringsplatser som kommer tillhöra Brf Brandtornet, i mobilitetshuset alldeles bredvid, som kommer att gå att hyra. Här finner du också bilpoolen. Mer information om hur detta kommer att gå till kommer till säljstarten. Cykelparkering kommer finnas i cykelrum i bostadshusen på markplan. i närområdet finns också kollektivtrafik i form av tåg och buss. Allt för att möta olika behov av transport.

Här kan du titta på huset och hitta din favortilägenhet.
Objekt | Pris | Avgift | Antal rum | Area | Våning | Status | |
|---|---|---|---|---|---|---|---|
Objekt 1142 | Ej fastställt | Ej fastställd | 5 | 155 kvm | 14 av 14 | Ledig | |
![]() ![]() ![]() ![]() ![]() ![]() ![]() ![]() ![]() ![]() ![]() ![]() ![]() ![]() ![]() ![]() ![]() ![]() ![]() ![]() ![]() ![]() ![]() ![]() ![]() ![]() ![]() ![]() ![]() ![]() ![]() ![]() ![]() ![]() ![]() ![]() ![]() ![]() ![]() 5:a med fantastisk utsiktWOW - Unikt boende med spektakulär utsikt! Unikt boende med enastående utsikt och extraordinära ytor. Ett hem med imponerande arkitektur, stora sociala ytor och en wow-utsikt som måste upplevas. Generöst vardagsrum, flexibla rum och två plan ger en exklusiv och luftig känsla. Här bor du med stil, rymd och något som verkligen inte liknar något annat. Läs mer om bostaden | |||||||
Objekt 2021 | Ej fastställt | Ej fastställd | 2 | 43 kvm | 2 av 7 | Ledig | |
![]() ![]() ![]() ![]() ![]() ![]() ![]() ![]() ![]() ![]() ![]() ![]() ![]() ![]() ![]() ![]() ![]() ![]() ![]() ![]() ![]() ![]() ![]() ![]() ![]() ![]() ![]() ![]() ![]() ![]() ![]() ![]() ![]() ![]() ![]() ![]() ![]() ![]() ![]() Bra planerad 2:aEn unik 2 rok om 43 kvm på andra våningen. Bra förvaring i hall. Kök och vardagsrum i öppen planlösning, plats för både soffa och mindre matplats. Sovrum med skjutdörrsgarderober. Läs mer om bostaden | |||||||
Objekt 2022 | Ej fastställt | Ej fastställd | 2 | 74 kvm | 2 av 7 | Ledig | |
![]() ![]() ![]() ![]() ![]() ![]() ![]() ![]() ![]() ![]() ![]() ![]() ![]() ![]() ![]() ![]() ![]() ![]() ![]() ![]() ![]() ![]() ![]() ![]() ![]() ![]() ![]() ![]() ![]() ![]() ![]() ![]() ![]() ![]() ![]() ![]() ![]() ![]() ![]() Stor 2:a med inglasad balkongEtt stilrent och välplanerat 2 rok om 74 kvm med generösa sociala ytor och flera härliga uteplatser, både öppna och inglasade. Det öppna köket och vardagsrummet skapar en luftig känsla och bjuder in till umgänge. Sovrummet är rymligt och i direkt anslutning till dressing room. De två uteplatserna och den inglasade balkongen ger fantastiska möjligheter till avkoppling året runt. Ett modernt boende med smarta förvaringslösningar och hög trivselfaktor. Läs mer om bostaden | |||||||
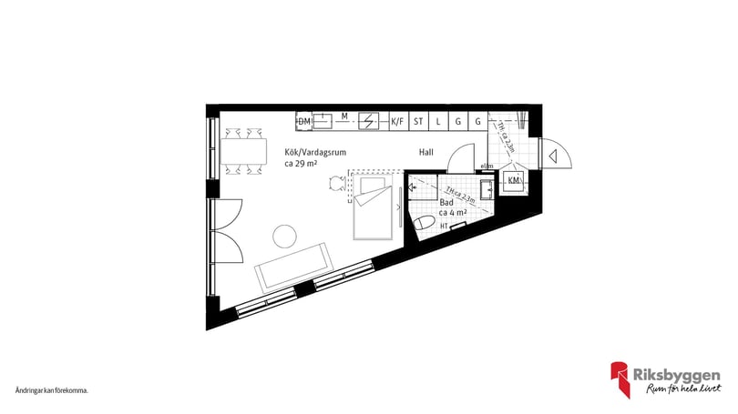
Objekt 2023 | Ej fastställt | Ej fastställd | 3 | 89 kvm | 2 av 7 | Ledig | |
![]() ![]() ![]() ![]() ![]() ![]() ![]() ![]() ![]() ![]() ![]() ![]() ![]() ![]() ![]() ![]() ![]() ![]() ![]() ![]() ![]() ![]() ![]() ![]() ![]() ![]() ![]() ![]() ![]() ![]() ![]() ![]() ![]() ![]() ![]() ![]() ![]() ![]() ![]() 3:a med avskild sovdelGenomtänkt 3 rok om 89 kvm, ett hem med fint ljusflöde från tre väderstreck och tre härliga balkonger, en i väster läge med utgång från kök. Från sovrum en inglasad och en öppen. Det stora kök/vardagsrummet bjuder på generösa sociala ytor, perfekt för både vardagsmys och middagar med vänner. Här finns två välplanerade sovrum, ett badrum med tvättdell och en wc/dusch.. En bostad som kombinerar stil, funktion och maximal komfort. Läs mer om bostaden | |||||||
Objekt 2024 | Ej fastställt | Ej fastställd | 3 | 81 kvm | 2 av 7 | Ledig | |
![]() ![]() ![]() ![]() ![]() ![]() ![]() ![]() ![]() ![]() ![]() ![]() ![]() ![]() ![]() ![]() ![]() ![]() ![]() ![]() ![]() ![]() ![]() ![]() ![]() ![]() ![]() ![]() ![]() ![]() ![]() ![]() ![]() ![]() ![]() ![]() ![]() ![]() ![]() Rymlig 3:a med öppen planlösning3 rok om 81 kvm med fint ljusinsläpp och två härliga balkonger, varav en inglasad för extra många användbara dagar. Den öppna planlösningen mellan kök och vardagsrum skapar en social och rymlig yta, perfekt för middagar och umgänge. Två välplanerade sovrum. Möjlighet till frånval av sovrum 2 till fördel för läshörna. Stilrena badrummet med tvättdel gör vardagen smidig. Här bor du bekvämt, modernt och med generösa ytor både inne och ute. Läs mer om bostaden | |||||||
Objekt 2025 | Ej fastställt | Ej fastställd | 1 | 42 kvm | 2 av 7 | Ledig | |
![]() ![]() ![]() ![]() ![]() ![]() ![]() ![]() ![]() ![]() ![]() ![]() ![]() ![]() ![]() ![]() ![]() ![]() ![]() ![]() ![]() ![]() ![]() ![]() ![]() ![]() ![]() ![]() ![]() ![]() ![]() ![]() ![]() ![]() ![]() ![]() ![]() ![]() ![]() Rymlig 1:a med fransk balkongI huset Ginstan på andra våningen med franskbalkong med utsikt mot parken, vattnet och väster finns denna 1 rok om 42 kvm. Rymlig hall med avhängning och garderob. Rum med plats för ett mindre matgrupp och soffa samt säng. Läs mer om bostaden | |||||||
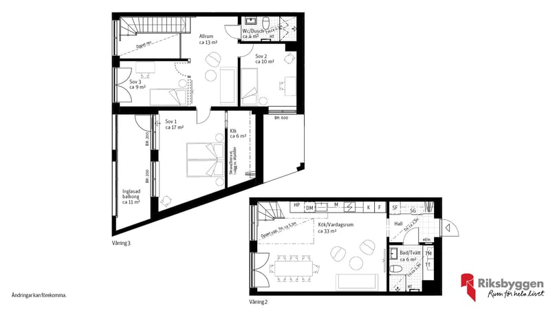
Objekt 2026 | Ej fastställt | Ej fastställd | 4 | 110 kvm | 2 av 7 | Ledig | |
![]() ![]() ![]() ![]() ![]() ![]() ![]() ![]() ![]() ![]() ![]() ![]() ![]() ![]() ![]() ![]() ![]() ![]() ![]() ![]() ![]() ![]() ![]() ![]() ![]() ![]() ![]() ![]() ![]() ![]() ![]() ![]() ![]() ![]() ![]() ![]() ![]() ![]() ![]() 4:a i två planUnikt boende i två plan med generösa ytor och inglasad balkong. Ett rymlig och välplanerad bostad i två nivåer där ljus och rymd möts på bästa sätt. Entréplan bjuder på ett stort kök/vardagsrum med gott om plats för både umgänge och avkoppling. Här finns även badrum med tvättdel. En trappa upp möts du av ett luftigt allrum, tre sovrum i bra storlek samt wc/dusch. Från det största sovrummet når du dessutom en härlig inglasad balkong. Läs mer om bostaden | |||||||
Objekt 2027 | Ej fastställt | Ej fastställd | 3 | 86 kvm | 2 av 7 | Ledig | |
![]() ![]() ![]() ![]() ![]() ![]() ![]() ![]() ![]() ![]() ![]() ![]() ![]() ![]() ![]() ![]() ![]() ![]() ![]() ![]() ![]() ![]() ![]() ![]() ![]() ![]() ![]() ![]() ![]() ![]() ![]() ![]() ![]() ![]() ![]() ![]() ![]() ![]() ![]() Två plan och öppen planlösningEtt trivsamt boende i två plan med smarta ytor och härlig rymd. Nedre plan bjuder på ett stort och socialt kök/vardagsrum med plats för både matlagning, middagar och avkoppling. Här finns även badrum med tvättdel och en välkomnande hall med bra förvaring. På övre plan väntar två rymliga sovrum, ett allrum som passar perfekt som arbetsplats eller tvrum. WC/dusch. En planlösning som ger gott om plats för både gemenskap och privatliv, idealiskt för ett för ett flexibelt vardagsliv. Läs mer om bostaden | |||||||
Objekt 2031 | Ej fastställt | Ej fastställd | 3 | 79 kvm | 3 av 7 | Ledig | |
![]() ![]() ![]() ![]() ![]() ![]() ![]() ![]() ![]() ![]() ![]() ![]() ![]() ![]() ![]() ![]() ![]() ![]() ![]() ![]() ![]() ![]() ![]() ![]() ![]() ![]() ![]() ![]() ![]() ![]() ![]() ![]() ![]() ![]() ![]() ![]() ![]() ![]() ![]() 3:a som kan göra till 2:aEn modern 3 rok om 79 kvm på våning tre. Ett hem där varje kvadratmeter är genomtänkt. Den öppna planlösningen mellan kök och vardagsrum skapar en luftig social yta på generösa kvadrat. Från köket nås dessutom både en inglasad balkong och en öppen balkong, två härliga uteplatser för alla årets stunder. Två sovrum. Möjlighet finns att göra ett frånval av sovrum 2 och istället skapa ett ännu rymligare vardagsrum. Funktionellt badrum med tvättmöjligheter. Läs mer om bostaden | |||||||
Objekt 2032 | Ej fastställt | Ej fastställd | 2 | 54 kvm | 3 av 7 | Ledig | |
![]() ![]() ![]() ![]() ![]() ![]() ![]() ![]() ![]() ![]() ![]() ![]() ![]() ![]() ![]() ![]() ![]() ![]() ![]() ![]() ![]() ![]() ![]() ![]() ![]() ![]() ![]() ![]() ![]() ![]() ![]() ![]() ![]() ![]() ![]() ![]() ![]() ![]() ![]() 3:a med bra förvaringEn välplanerad 2 rok på tredje våningen om 54 kvm med öppna sociala ytor rymlig öppen balkong. Det rymliga kök/vardagsrummet bjuder på generöst ljusinsläpp och gott om plats för både matbord och soffgrupp. Sovrum med rymlig klädkammare samt utgång till balkong. Här finns även ett modernt badrum med tvättmöjligheter. Läs mer om bostaden | |||||||
På Pottholmen har du nära till allt som Karlskrona stad har att erbjuda. Här är du inte bara granne med Borgmästarefjärden med dess vackra promenadstråk och inbjudande solnedgångar utan även nära till Trossö centrum med sina mysiga kullerstensgator, där det finns butiker, mataffärer, pubar, caféer, vårdcentral, apotek och mycket mer.
Dessutom har du nära till härliga picknickställen, flera badplatser, båtplatser och cykelavstånd till Blekinge Tekniska Högskola. Blickar du åt andra hållet så har du buss- och tågstationen och småbåtshamnen som nära granne.
Är det stort vardagsrum eller balkong med morgonsol som lockar? Med Riksbyggen Förtur får du chansen att se och välja nyproducerade bostadsrätter, äganderätter och hyrköp före andra.